Unit 136
Available
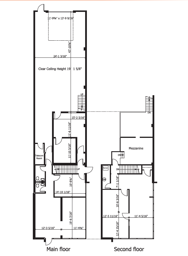
Corner industrial bay located in Northeast Calgary, featuring drive-in loading and office space across two floors. The main floor includes a reception/showroom area, one private office, and two washrooms. The second floor offers two large open office areas, plus a 443 sq. ft. bonus storage mezzanine at no additional charge.
- Listing ID: 5212
- Area: 3,644 sqft
- Rent: Negotiable
- Op Cost: $6.82/sqft
- Brochure: https://safewayholdings.ca/wp-content/uploads/2026/04/1530-27thAvenueNEUnit1363644sfForLeaseApril2026.pdf
- Floor Plan: https://safewayholdings.ca/wp-content/uploads/2026/04/FP.png